cobblestone
Paris
Bungalow
2 Beds • 2 Baths
1.718 sq.ft.
Bungalow
2 Beds • 2 Baths
1,320 - 1,350 sqft.
This is just an estimate and does not represent or guarantee any rates or amounts. All calculations and scenarios are for demonstration purposes only. Interest rates noted above are subject to change without notice. To obtain a mortgage you must apply and meet our credit requirements. Calculations assume no change in interest rate over the life of the mortgage.
This is just an estimate and does not represent or guarantee any rates or amounts. All calculations and scenarios are for demonstration purposes only. Interest rates noted above are subject to change without notice. To obtain a mortgage you must apply and meet our credit requirements. Calculations assume no change in interest rate over the life of the mortgage.
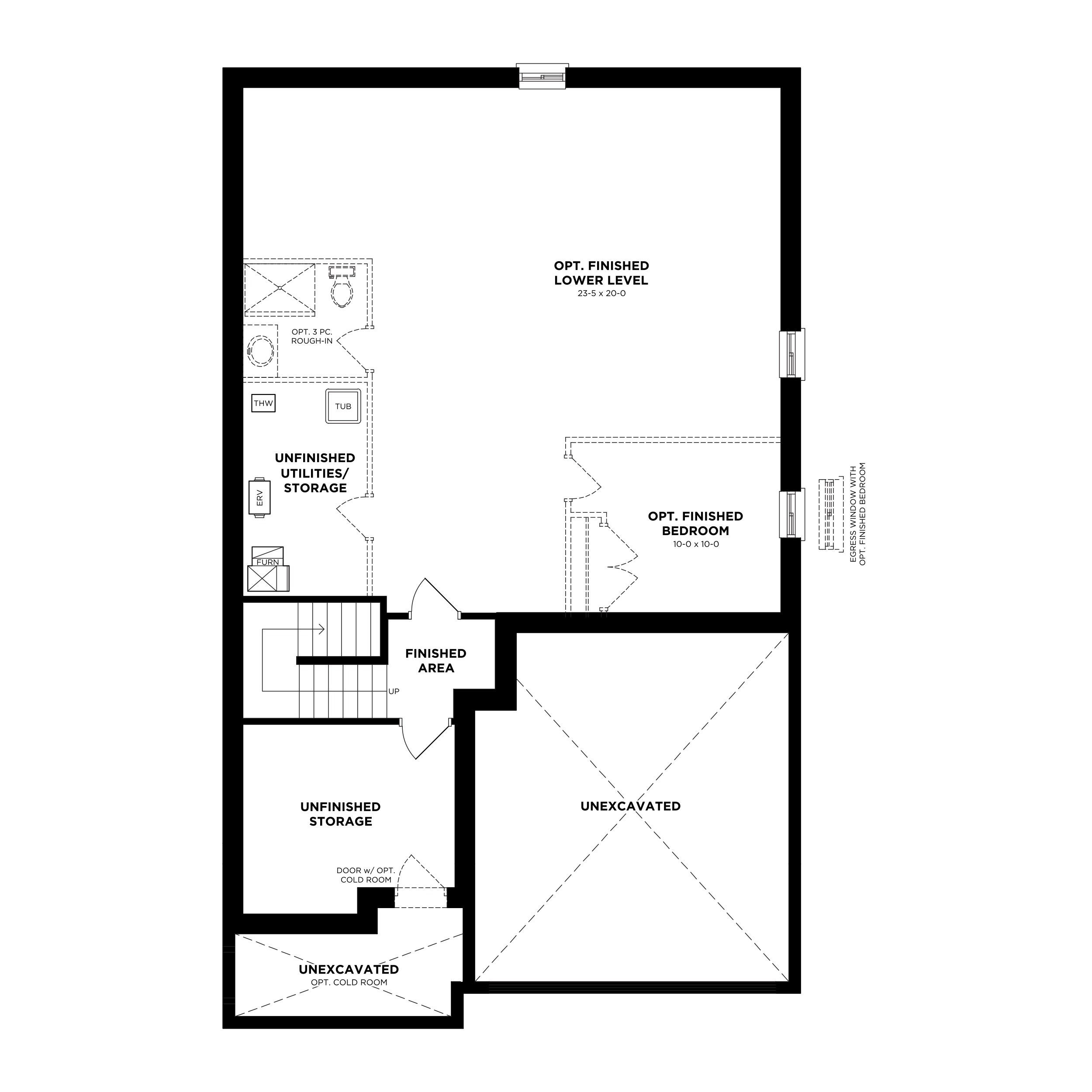
The Wentworth is designed for convenience and style, featuring a bright, open main floor with a spacious great room, modern kitchen, and dining area that flows effortlessly for everyday living. Two bedrooms, including a private primary suite with walk-in closet and ensuite, offer comfort and functionality, along with a full bath and laundry space. For added versatility, an optional lower level provides room for a home office, gym, or recreation area—perfect for customizing to your needs.
Paris
Bungalow
2 Beds • 2 Baths
1.718 sq.ft.
Paris
Bungalow
3 Beds • 2 Baths
1.678 sq.ft.
Paris
Bungalow
2 Beds • 2 Baths
1.336 sq.ft. - 1.412 sq.ft.
Paris
Bungalow
2 Beds • 2 Baths
2.038 sq.ft.
Paris
Bungalow
3 Beds • 2 Baths
1.503 sq.ft. - 1.515 sq.ft.
Paris
Bungalow
2 Beds • 2 Baths
1.674 sq.ft. - 1.706 sq.ft.
Speak with our Sales Team
A member of our Sales Team will be in touch soon to share the latest properties and opportunities that match your interests.