whitehaven-interior-f2
Beamsville
3-Storey Town
3 Beds • 2.5 Baths
2.016 sq.ft.
3-Storey Town
3 Beds • 2.5 Baths
1,694 sqft.
This is just an estimate and does not represent or guarantee any rates or amounts. All calculations and scenarios are for demonstration purposes only. Interest rates noted above are subject to change without notice. To obtain a mortgage you must apply and meet our credit requirements. Calculations assume no change in interest rate over the life of the mortgage.
This is just an estimate and does not represent or guarantee any rates or amounts. All calculations and scenarios are for demonstration purposes only. Interest rates noted above are subject to change without notice. To obtain a mortgage you must apply and meet our credit requirements. Calculations assume no change in interest rate over the life of the mortgage.
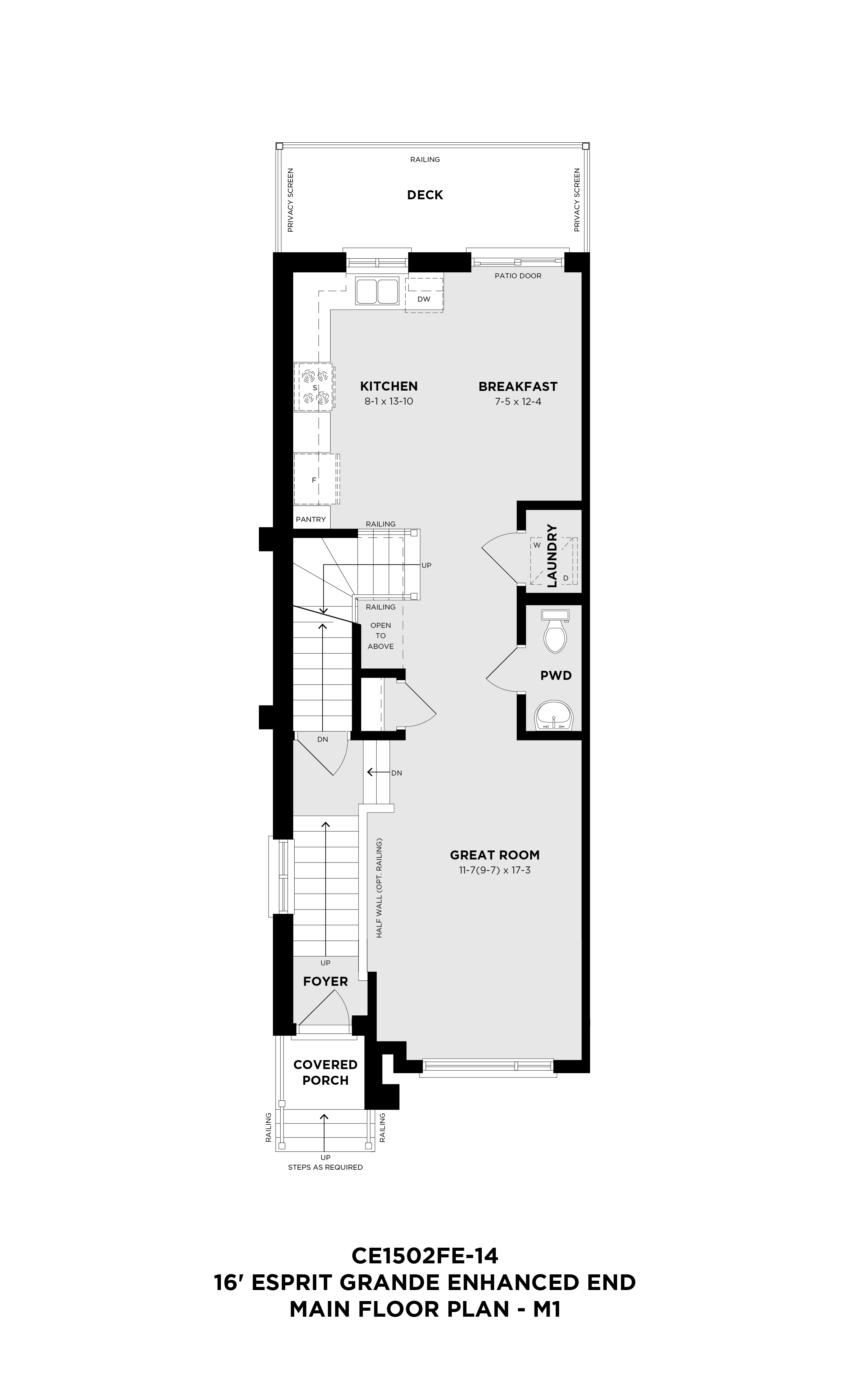
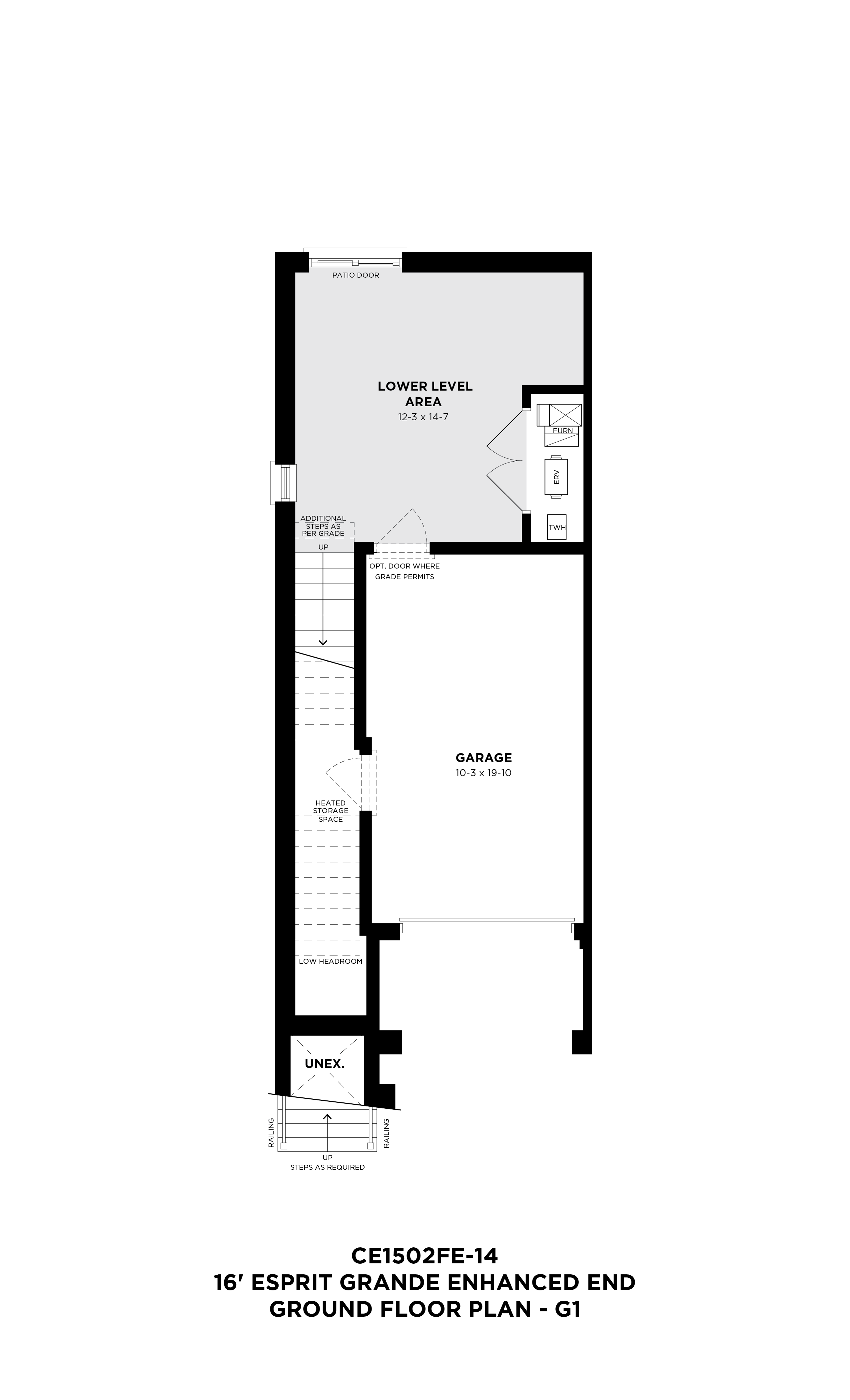
The Esprit Grande End offers a stylish open-concept main floor with a gourmet kitchen, breakfast area, and a spacious great room that opens to a rear deck; perfect for entertaining. Upstairs, enjoy three bedrooms, including a private primary suite with walk-in closet and ensuite, plus a convenient laundry and versatile upper hallway. The ground level features a garage, foyer, and a finished lower-level space for added flexibility.
Beamsville
3-Storey Town
3 Beds • 2.5 Baths
2.016 sq.ft.
Beamsville
3-Storey Town
3 Beds • 2.5 Baths
2.025 sq.ft.
Beamsville
3-Storey Town
3 Beds • 2.5 Baths
2.080 sq.ft.
Beamsville
3-Storey Town
3 Beds • 2.5 Baths
1.344 sq.ft.
Beamsville
3-Storey Town
3 Beds • 2.5 Baths
1.535 sq.ft.
Beamsville
3-Storey Town
3 Beds • 2.5 Baths
1.281 sq.ft.
Beamsville
3-Storey Town
3 Beds • 2.5 Baths
1.281 sq.ft.
Beamsville
3-Storey Town
3 Beds • 2.5 Baths
1.583 sq.ft.
Beamsville
3-Storey Town
3 Beds • 2.5 Baths
1.519 sq.ft.
Beamsville
3-Storey Town
3 Beds • 2.5 Baths
1.647 sq.ft.
Beamsville
3-Storey Town
3 Beds • 2.5 Baths
1.783 sq.ft.
Beamsville
3-Storey Town
3 Beds • 2.5 Baths
1.710 sq.ft.
Beamsville
3-Storey Town
3 Beds • 2.5 Baths
1.237 sq.ft.
Beamsville
3-Storey Town
3 Beds • 2.5 Baths
1.205 sq.ft.
Beamsville
3-Storey Town
3 Beds • 3.5 Baths
2.115 sq.ft.
Beamsville
3-Storey Town
3 Beds • 2.5 Baths
2.080 sq.ft.
Beamsville
3-Storey Town
3 Beds • 2.5 Baths
2.016 sq.ft.
Speak with our Sales Team
A member of our Sales Team will be in touch soon to share the latest properties and opportunities that match your interests.